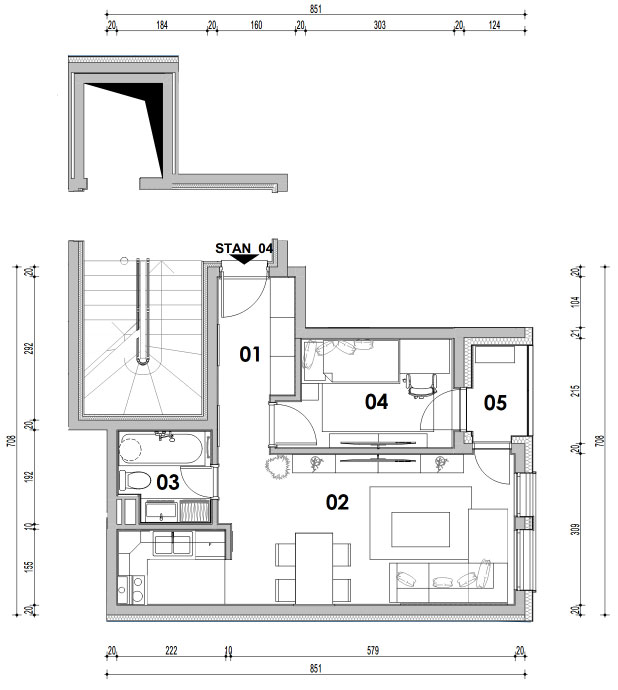
STAN 4 - DVOSOBAN / PRVI SPRAT

Stan po vašoj meri

Dvosoban stan na prvom spratu ukupne površine od 39.77 m2 sa terasom.

  • Ukupna površina: 39.77 m2
  • Sobe: x2
  • Kupatilo: x1
  • Terasa: x1
STAN 4 - DVOSOBAN / PRVI SPRAT
01 HODNIK 4.27 m2
02 Dnevni boravak 22.00 m2
03 Kupatilo 3.43 m2
04 Spavaća soba 7.97 m2
05 Terasa 2.10 m2
Ukupna površina 39.77 m2

Zakažite posetu

Zakažite termin i konsultaciju sa našim agentom,
možda je neki od stanova baš za vas!

Top