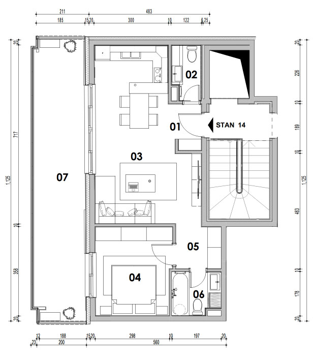
STAN 14 - Dvosoban / poslednji sprat

Stan po vašoj meri

Dvosoban stan na poslednjem spratu površine od 70.42 m2 sa terasom.

  • Ukupna površina: 70.42 m2
  • Sobe: x2
  • Hodnik: x1
  • Kupatilo: x1
  • WC: x1
  • Terasa: x1
STAN 14 - DVOSOBAN / POSLEDNJI SPRAT
01 HODNIK 2.21 m2
02 WC 2.57 m2
03 Dnevni boravak 24.44 m2
04 SPAVAĆA SOBA 12.30 m2
05 HODNIK/PLAKAR 7.33 m2
06 KUPATILO 3.38 m2
07 Terasa 22.40 m2
Ukupna površina 70.42 m2

Zakažite posetu

Zakažite termin i konsultaciju sa našim agentom,
možda je neki od stanova baš za vas!

Top